le YÄNI

1220 pieds carrés | 2 chambres (possibilité de 3) | 1 salle de bain | à partir de 254 990 $

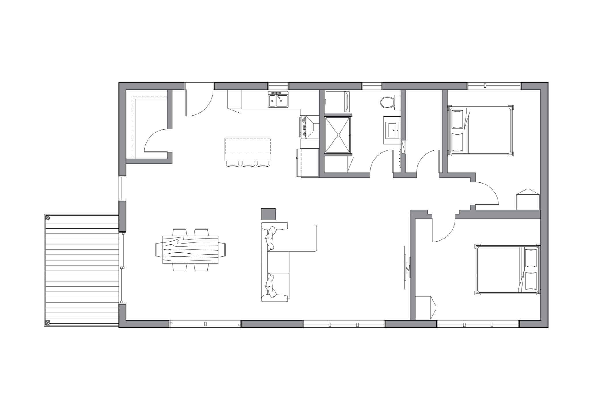
Cette maison contemporaine de 1220 pieds carrés offre un refuge chaleureux, combinant style et fonctionnalité. On y retrouve une grande aire de vie avec une façade complètement vitrée qui laisse entrer la lumière. Le plan vous propose deux chambres, avec la possibilité d’en ajouter une troisième au besoin. Le prix indiqué est pour le modèle 2 chambres avec les matériaux standards.

Le YÄNI est constitué de deux modules et son installation peut être complétée en quelques jours.

Dimensions YÄNI 2 chambres

Habitation complète - 46’-7’’ X 26’7’’

  • Chambre 1 - 10’-2’’ X 13’-0’’

  • Chambre 2 - 11’-0’’ X 13’-8’’

  • Salle de bain - 8’-4’’ X 9’-0’’

  • Salle mécanique - 4’-0’’ X 9’-0’’

  • Cuisine - 16’-0’’ X 13’-7’’

  • Salle à manger - 16’-3’’ X 11’-5’’

  • Rangement - 4’-6’’ X 7’-6’’

  • Salon - 14’-8’’ X 11’-5’’

  • Galerie couverte - 8’-0’’ X 12’-0’’

Précédent
Précédent

le LÜMI | à partir de 274 990 $

Suivant
Suivant

le SCANDI | à partir de 144 990 $