le MÖRGEN

640 pieds carrés | 2 chambres | 1 salle de bain | à partir de 179 990$

La collection NÖMA est conçue par Versant Mini Maison et construite par Alexi Modulaire.

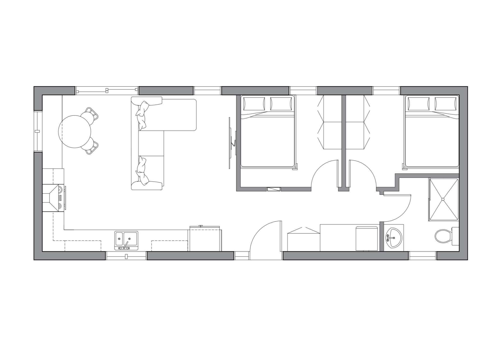
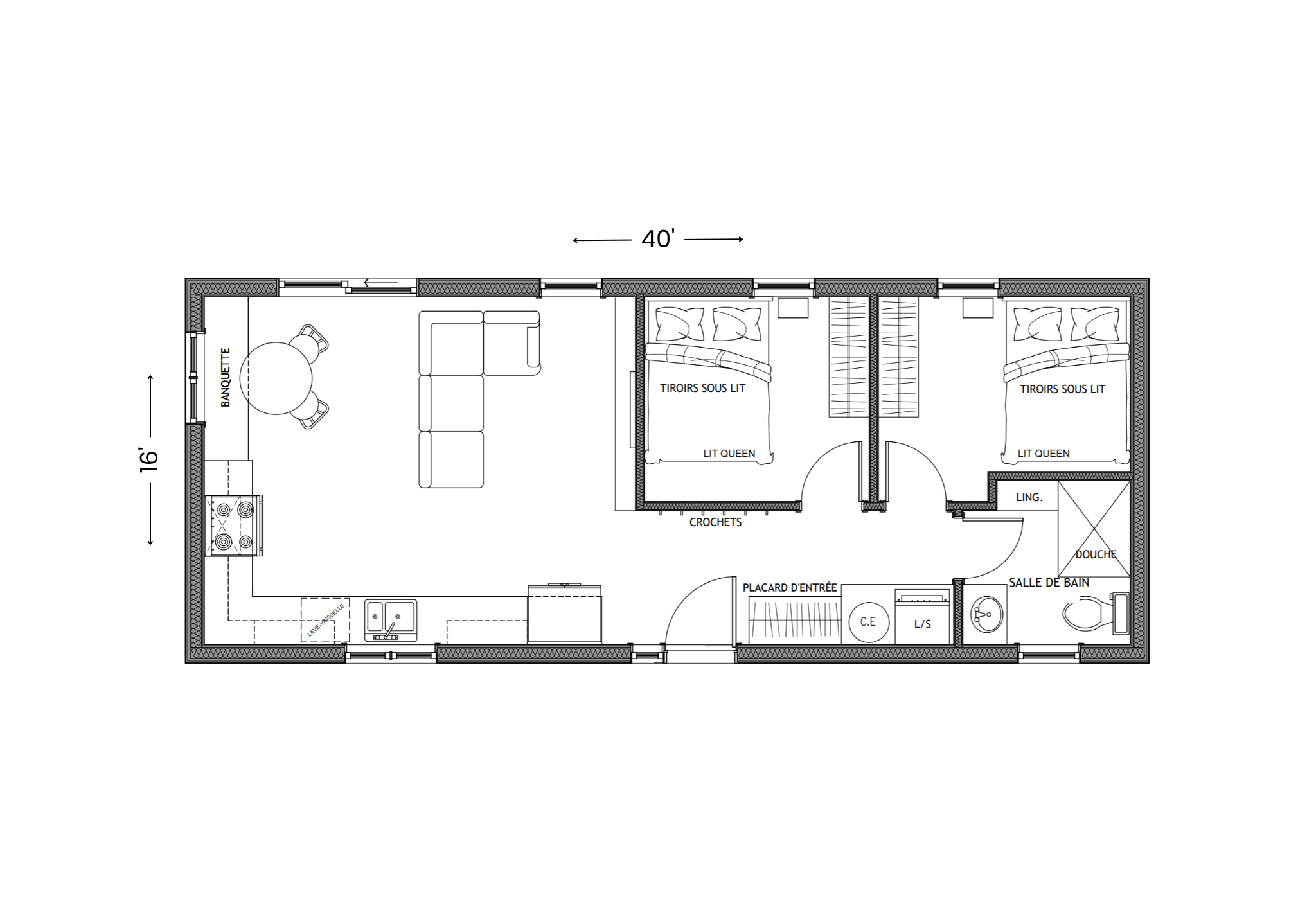
Le MÖRGEN est un tout petit modèle ultra fonctionnel : l’aire de vie comprend un petit salon et une cuisine en L qui permet une optimisation de l’espace. Le placard d’entrée comprend un espace pour la laveuse sécheuse. Vous y trouverez deux chambres avec du rangement pratique ainsi qu’une petite salle de bain.

Le MÖRGEN est composé d’un seul module, son installation peut donc être complété en une journée.

Dimensions

Habitation complète - 40’-0’’ X 16’-0’’

  • Chambre 1 - 10’-5’’ X 8’-6’’

  • Chambre 2 - 9’-14’’ X 8’-6’’

  • Salle de bain - 6’-11’’ X 6’-9’’

  • Séjour - 17’-10’’ X 14’-5’’

Précédent
Précédent

le LYS | à partir de 244 990 $