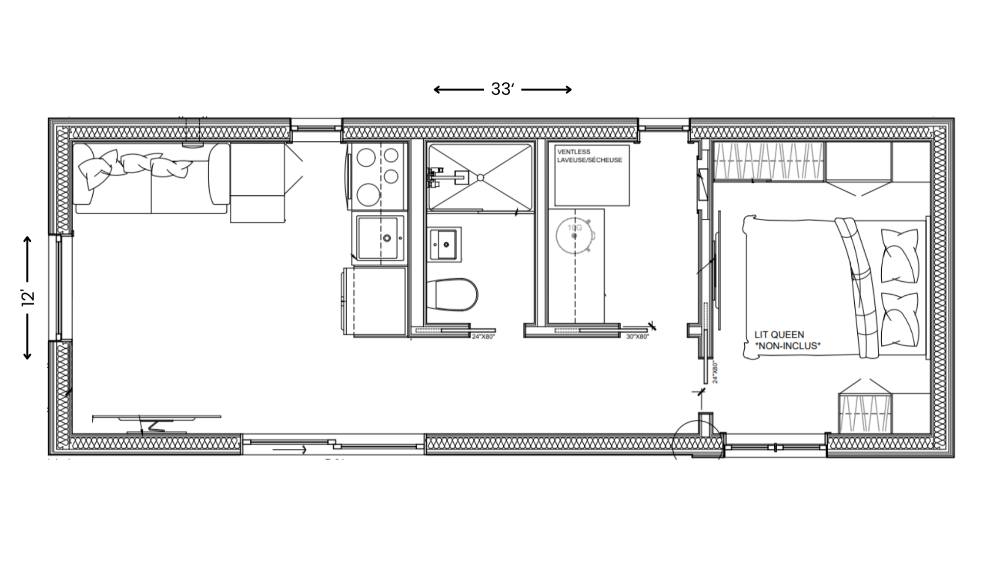
le GAËL

396 pieds carrés | 1 chambre | 1 salle de bain

Vous avez envie d'un petit espace de vie, le temps de vous évader un weekend? Ne cherchez pas plus loin que le modèle GAËL. Ce mini habitat est conçu pour optimiser chaque coin.

Le GAËL est constitué d’une chambre à coucher fermée, une aire de vie ouverte une salle de bain et un espace de rangement. 

Étant disponible en option éco-autonome, le GAËL peut facilement être utilisé comme camp forestier ou camp de chasse.

Précédent
Précédent

le FLOW