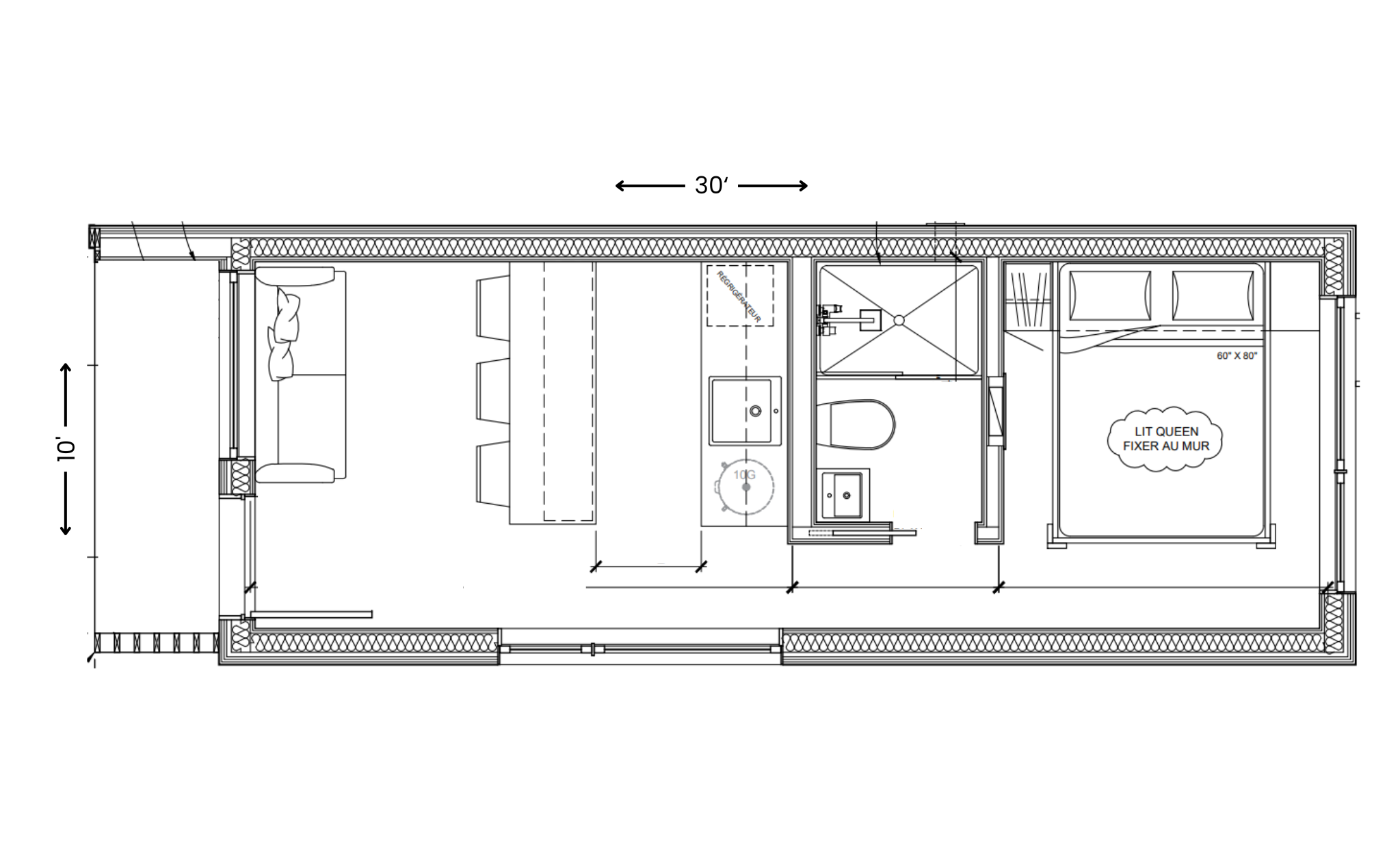
le MÏRA

270 pieds carrés | 1 chambre | 1 salle de bain

Le MÏRA est constitué d’une chambre à coucher et une aire de vie ouverte incluant une cuisinette et un salon. Étant disponible en option éco-autonome, le MÏRA peut facilement être utilisé comme camp forestier ou camp de chasse. 

Précédent
Précédent

le LILA | 104 990$

Suivant
Suivant

le IRÈNE