le JAKY

200 pieds carrés | 1 chambre | 1 salle de bain

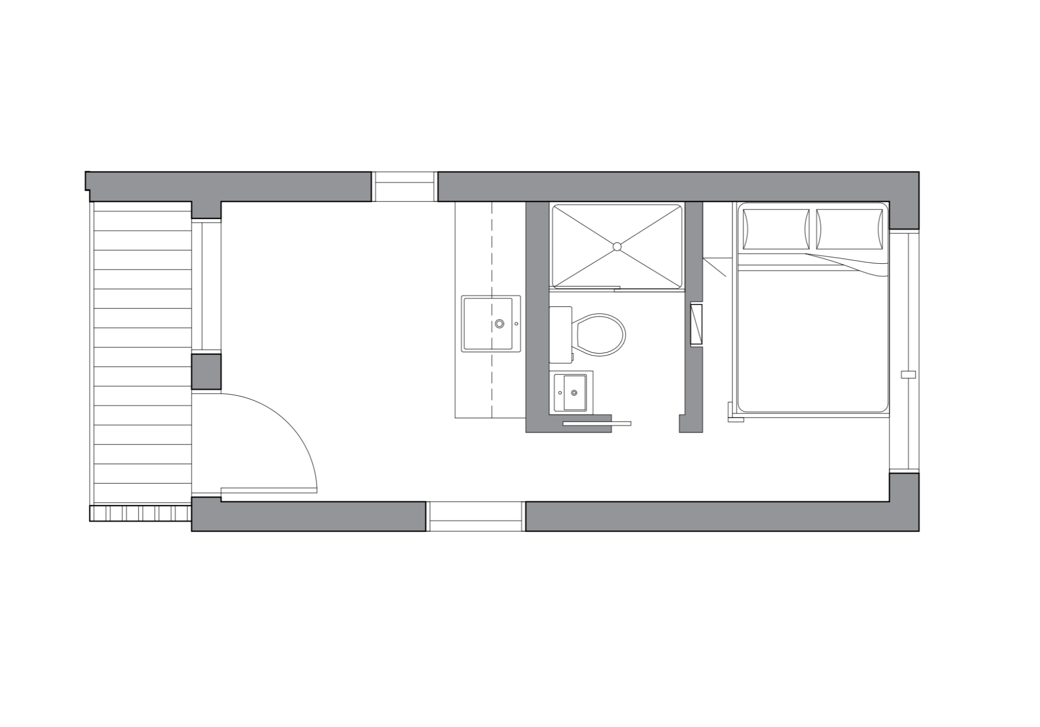
Le JAKY est constitué d’une chambre à coucher fermée, une aire de vie ouverte, une salle de bain et un espace de rangement. Étant disponible en option écoautonome, le JAKY peut facilement être utilisé comme camp forestier ou camp de chasse.

Construit en un seul module, l’installation de ce modèle est rapide et est complétée en quelques heures seulement.

Dimensions

Habitation complète - 10’-0’’ X 20’-0’

Précédent
Précédent

FLOW | à partir de 73 490 $

Suivant
Suivant

MÏRA | à partir de 134 990 $