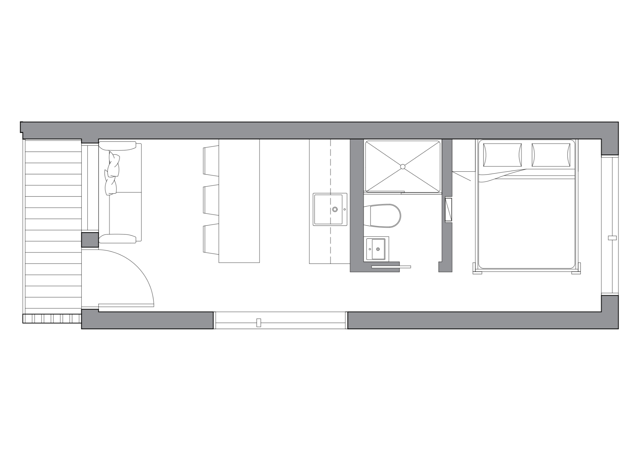
le MÏRA

300 pieds carrés | 1 chambre | 1 salle de bain

Le modèle MÏRA est constitué d’une chambre à coucher et d’une aire de vie ouverte incluant une cuisinette et un salon. Étant disponible en option écoautonome, il peut facilement être utilisé comme camp forestier.

Étant construit en un seul module, le MÏRA est habitable quelques heures seulement après sa livraison.

Dimensions

Habitation complète - 30’-0’’ X 10’-0’’

  • Chambre - 7’-11’’ X 10’-7’’

  • Salle de bain - 6’-9’’ X 4’-11’’

  • Séjour - 13’-0’’ X 10’-7’’

  • Galerie couverte - 3’-0’’ X 10’-7’’

Précédent
Précédent

JAKY | à partir de 114 990 $

Suivant
Suivant

GAËL | à partir de 155 990 $