le BORÉA MEZZANINE

1050 pieds carrés | 3 chambres | 1 salle de bain | à partir de 334 990 $

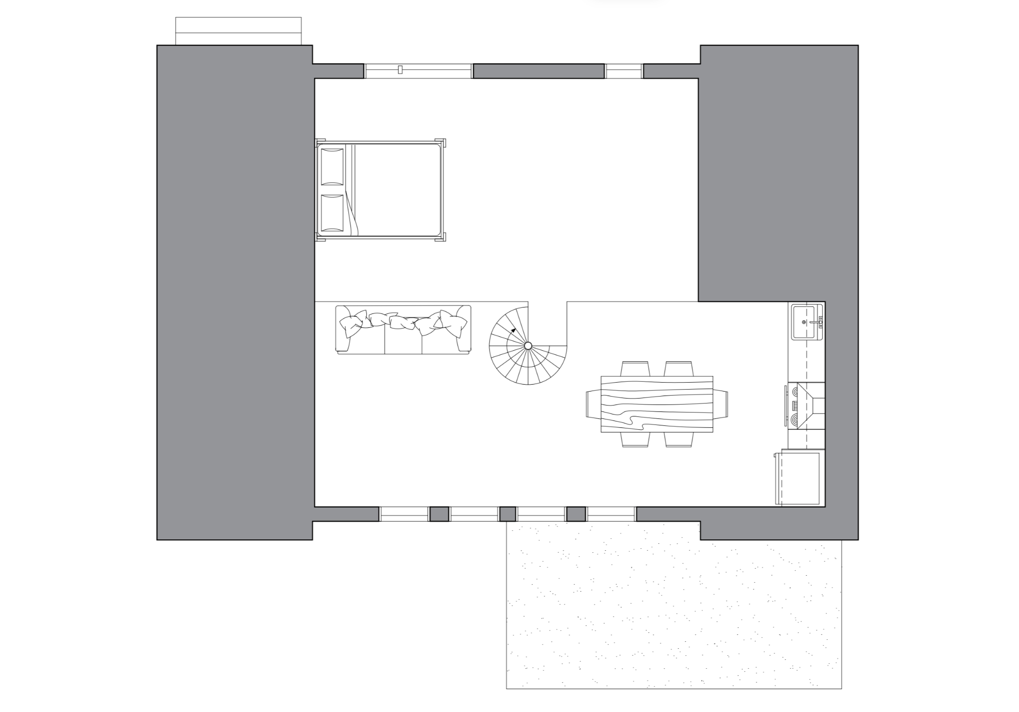
Ce modèle d’inspiration traditionnelle est constitué de 2 étages. Le premier étage offre un espace ouvert incluant une cuisine et un salon ainsi que 2 chambres et une salle de bain. Les grandes fenêtres et la porte patio laissent entrer la lumière naturelle, vous permettant de profiter pleinement de la nature environnante. La mezzanine offre une pièce polyvalente pouvant être une chambre, un bureau ou même une salle de séjour.

Le BORÉA mezzanine est constitué de 4 modules, son installation peut prendre quelques jours.

Dimensions

1er étage - 35’-8’’ X 24’-7’’

  • Galerie couverte entrée - 6’-9’’ X 12’-2’’

  • Chambre 1 - 8’-11’’ X 11’-0’’

  • Chambre 2 - 10’-0’’ X 6’-3’’

  • Salle de bain - 7’-4’’ X 8’-4’’

  • Cuisine/salle à manger - 14’-11’’ X 11’-0’’

  • Salon - 12’-5’’ X 11’-0’’

  • Walk-in - 6’-3’’ X 4’-7’’

  • Galerie couverte - 8’-0’’ X 16’-0’’

2 e étage

  • Mezzanine - 20’-7’’ X 12’-0’’

Précédent
Précédent

le TUNDRA | à partir de 241 990 $

Suivant
Suivant

le ASPËN | à partir de 269 990 $