le TUNDRA

997 pieds carrés | 3 chambres | 1 salle de bain | à partir de 241 990 $

Le TUNDRA offre tout ce qu'il faut pour vivre confortablement : 3 chambres à coucher, 1 salle de bain, un grand salon ouvert sur la salle à manger et une cuisine fonctionnelle. La terrasse couverte à l'avant vient prolonger l'espace de vie vers l'extérieur, parfaite pour profiter de la belle saison.

Que vous cherchiez une résidence principale, un chalet familial ou un investissement locatif, le TUNDRA s'adapte à votre projet et à votre terrain. Comme tous nos modèles, il est livré avec une finition complète et peut être personnalisé selon vos goûts, couleurs, matériaux, options : on s'adapte à vous.

Étant construit sur 2 modules, l’installation du TUNDRA est complété en quelques jours.

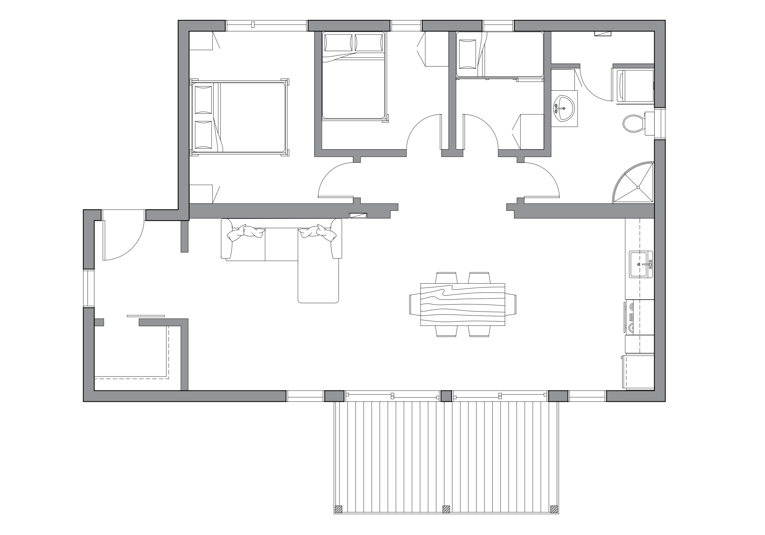
Dimensions

Habitation complète - 41’-0’’ X 26’-6’’

  • Chambre 1 - 8’-11’’ X 12’-3’’

  • Chambre 2 - 9’-0’’ X 9’-5’’

  • Chambre 3 - 6’-3’’ X 9’-5’’

  • Salle de bain - 7’-4’’ X 9’-7’’

  • Salle mécanique - 7’-4’’ X 2’-4’’

  • Salon - 14’-5’’ X 12’-3’’

  • Salle à manger et cuisine - 18’-9’’ X 12’-3’’

  • Entrée - 6’-2’’ X 7’-0’’

  • Walk-in - 6’-2’’ X 4’-7’’

Plan tundra
Précédent
Précédent

le BORÉA | à partir de 194 990 $

Suivant
Suivant

le BORÉA mézzanine | à partir de 334 990 $