le LÜNA

900 pieds carrés | 1 chambre + mezzanine | 1 salle de bain | à partir 324 990 $

Le modèle LÜNA se distingue par son design moderne et son aménagement intelligent dans un format compact de 900 pieds carrés. Sa structure, composée de deux modules superposés en forme de L, attire l’œil en lui donnant un style moderne et aérien. 

Comme tous nos modèles, LÜNA est équipé d’une fenestration écoénergétique, d’un revêtement de plancher en PVC, d’un revêtement extérieur en Canexel et d’une protection antivermine, idéale pour les chalets en forêt. 

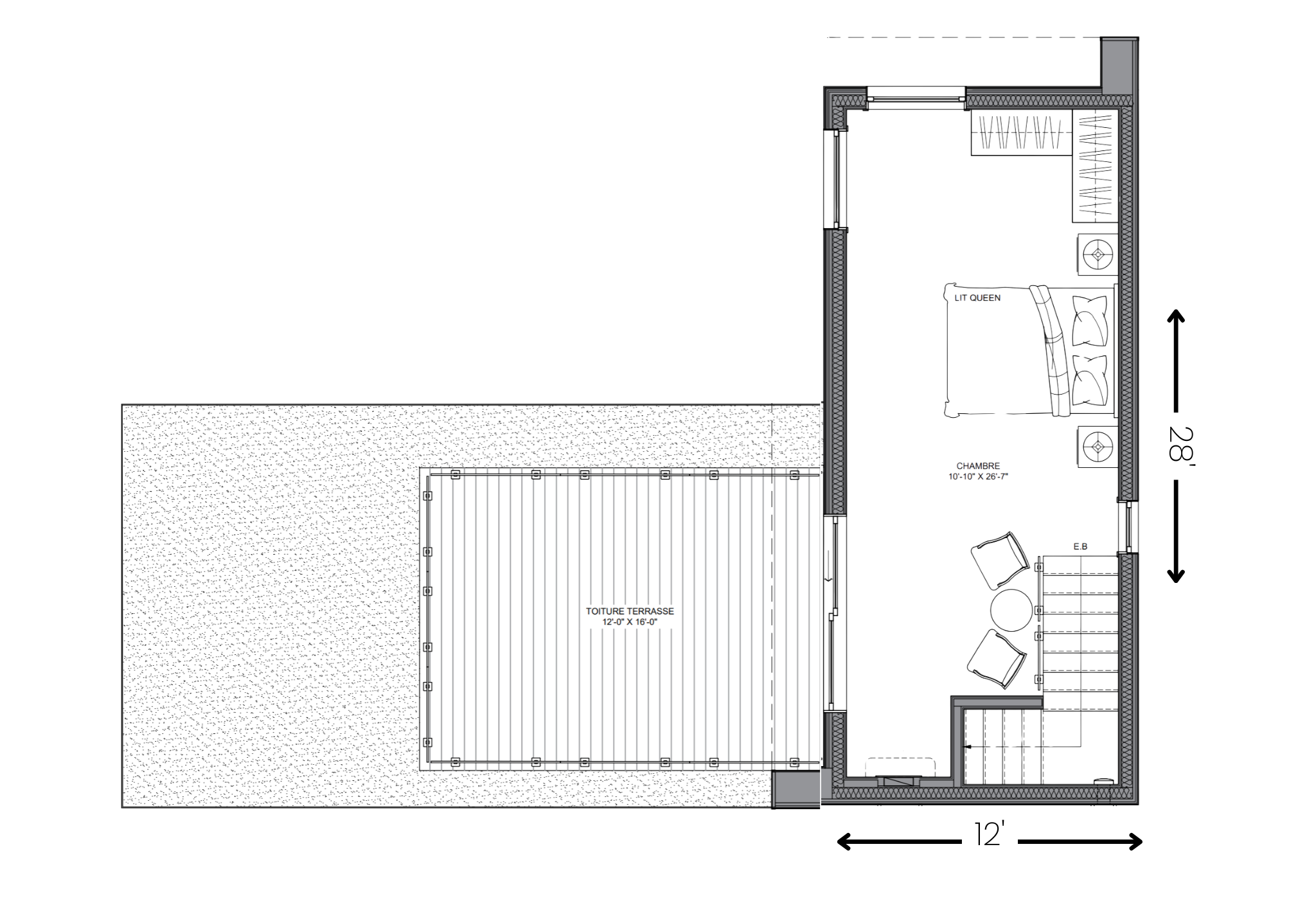
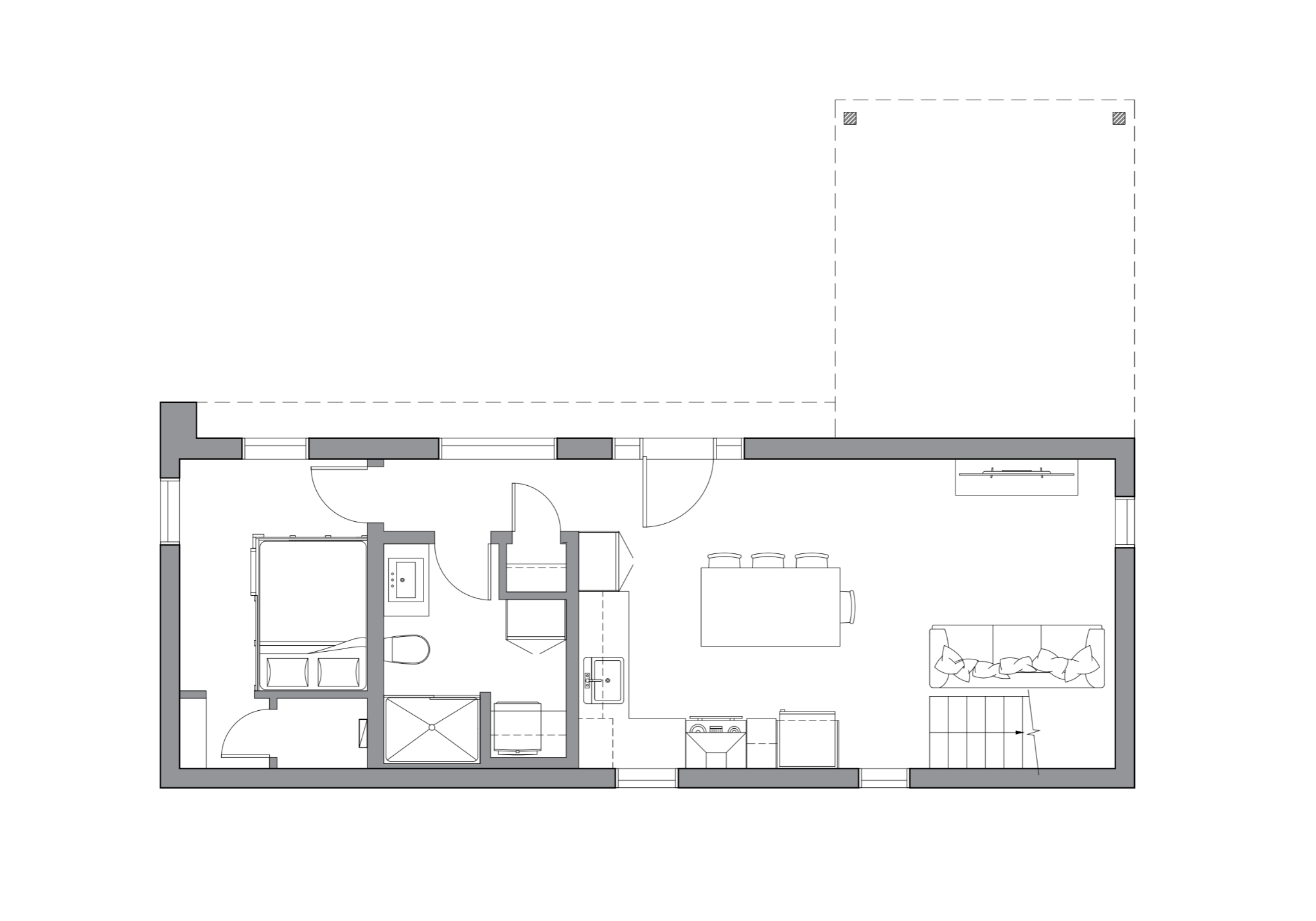
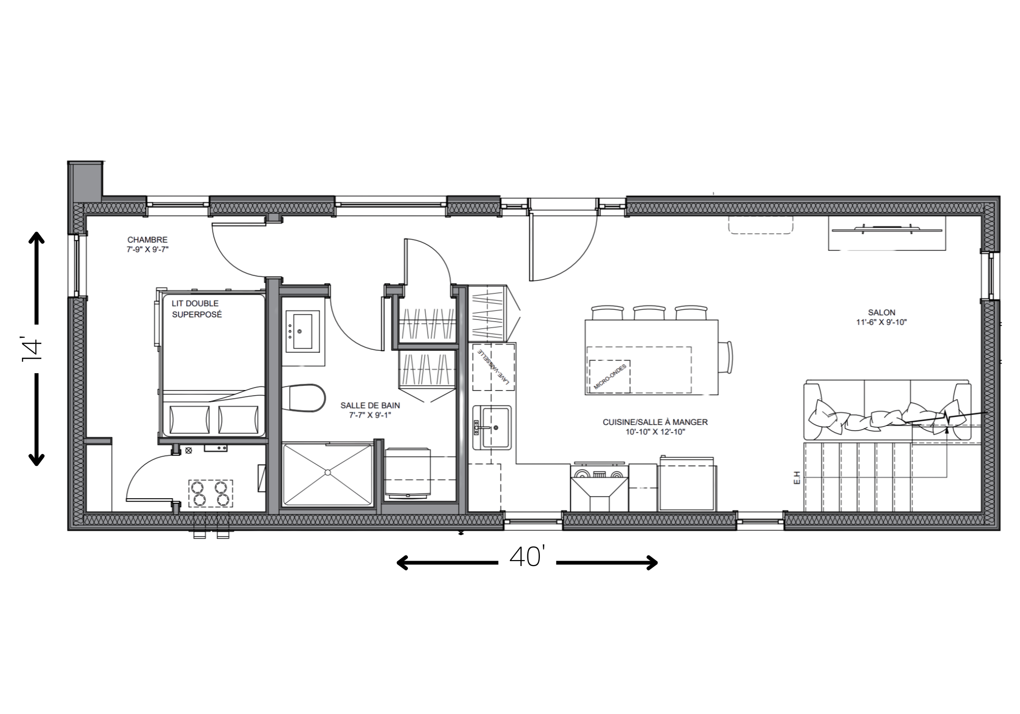
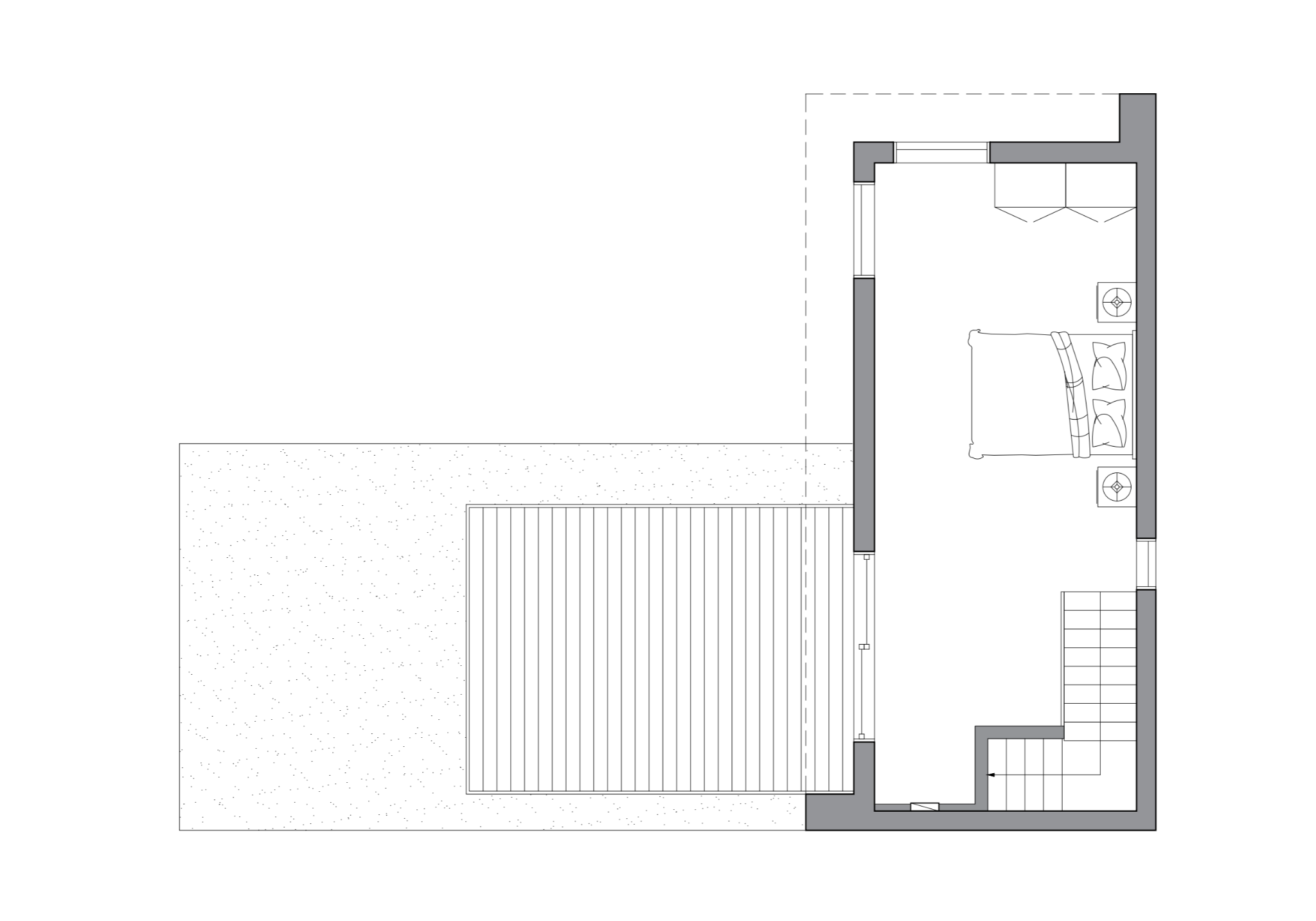
Le rez-de-chaussée comprend une chambre, une salle de bain, ainsi qu’un salon et une salle à manger à aire ouverte. À l’étage, vous trouverez une grande pièce polyvalente qui peut servir de chambre supplémentaire, de bureau ou d’espace détente.  

Cette pièce donne accès à une terrasse sur le toit du module inférieur, parfaite pour profiter du plein air, prendre un café ou recevoir des invités. 

Dimensions

1 er étage - 14’-0’’ × 40’-5’’

  • Chambre 1 - 7’-9’’ X 9’-7’’

  • Salle de bain - 7’-7’’ X 9’-1’’

  • Cuisine/salle à manger - 10’-10’’ X 12’-10’’

  • Salon - 11’-6’’ X 9’-10’’

2 e étage - 12’-0’’ X 28’-0’’

  • Chambre 2 - 10’-10’’ X 26’-7’’

Demande d’information

Suivant
Suivant

le TÖNYK | à partir de 204 990 $