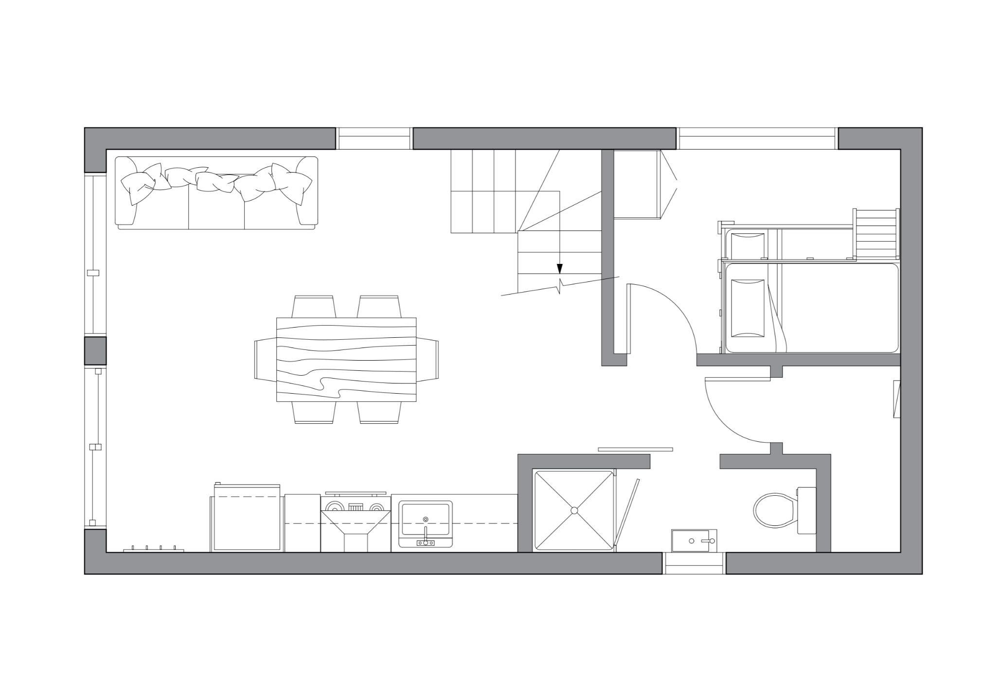
le TÖNYK

680 pieds carrés | 2 chambres | 1 salle de bain | à partir de 204 990$

Le TÖNYK est idéal pour les escapades de week-end. Il offre un espace à aire ouverte avec une grande mezzanine. Son toit cathédral et sa façade largement vitrée inondent l'intérieur de lumière naturelle. Ce chalet est équipé de deux chambres à coucher (dont une sur la mezzanine), d'une salle de bain et d'un espace ouvert comprenant cuisine, salle à manger et salon.

Dimensions

1 er étage - 30’-0’’ X 16’-0’’

  • Chambre 1 - 10’-3’’ x 7’-4’’

  • Salle de bain - 10’-2’’ X 3’-0’’

  • Séjour - 15’-0’’ X 14’-5’’

  • Salle mécanique - 4’-3’’ X 6’-8’’

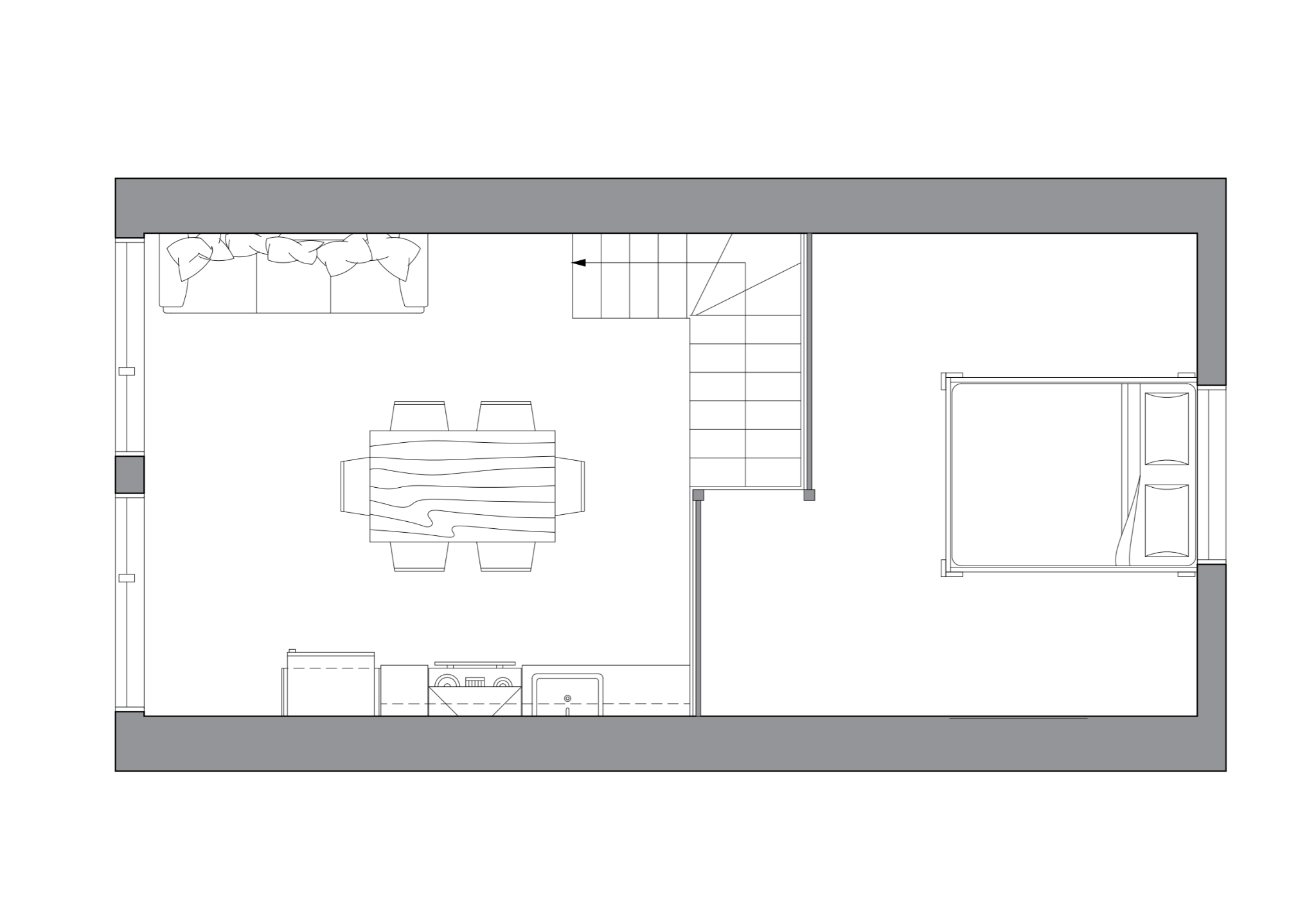
2 e étage

  • Mezzanine - 13’-8’’ X 14’-5’’

Précédent
Précédent

le LÜNA | à partir de 324 990 $

Suivant
Suivant

le MÖKKI | à partir de 234 990 $