le MÖKKI

1150 pieds carrés | 2 - 3 chambres | 1 salle de bain | à partir de 234 990 $

Le MÖKKI est un modèle d’inspiration scandinave composé de 2 modules. Vous serez séduit par son plafond cathédrale et sa généreuse fenestration.

Le MÖKKI peut être personnalisé selon vos besoin, le modèle de base a deux chambres à coucher avec la possibilité d’en ajouter une troisième. Il est composé d'une pièce spacieuse à aire ouverte incluant une cuisine complète, un espace salle à manger et un salon lumineux. La grande galerie couverte à l'avant de l'habitation vous permettra de profiter de la nature à l'abri de toute intempérie.

Construit en deux modules, l’installation du MÖKKI peut être complétée en 48 heures.

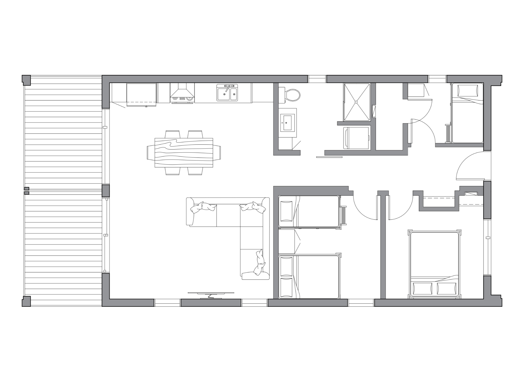
Dimensions MÖKKI 2 chambres

Habitation complète - 23’ 11’’ X 49’ 6’’

  • Chambre 1 - 10’-2’’ x 10’-8’’

  • Chambre 2 - 10’-8’’ X 10’-8’’

  • Salle de bain - 10’-1’’ X 7’-0’’

  • Salle mécanique - 2’-6’’ X 6’-7’’

  • Cuisine/salle à manger - 16’-11’’ X 11’-1’’

  • Salon - 16’-11’’ X 11’-1’’

  • Galerie couverte - 16’-0’’ X 11’-10’’

Précédent
Précédent

le TÖNYK | à partir de 204 990 $

Suivant
Suivant

le LÜMI | à partir de 274 990 $